BOULOGNE BILLANCOURT - SEINE MUSICALE - APPARTEMENT 4P 3 CHAMBRES
Boulogne billancourt
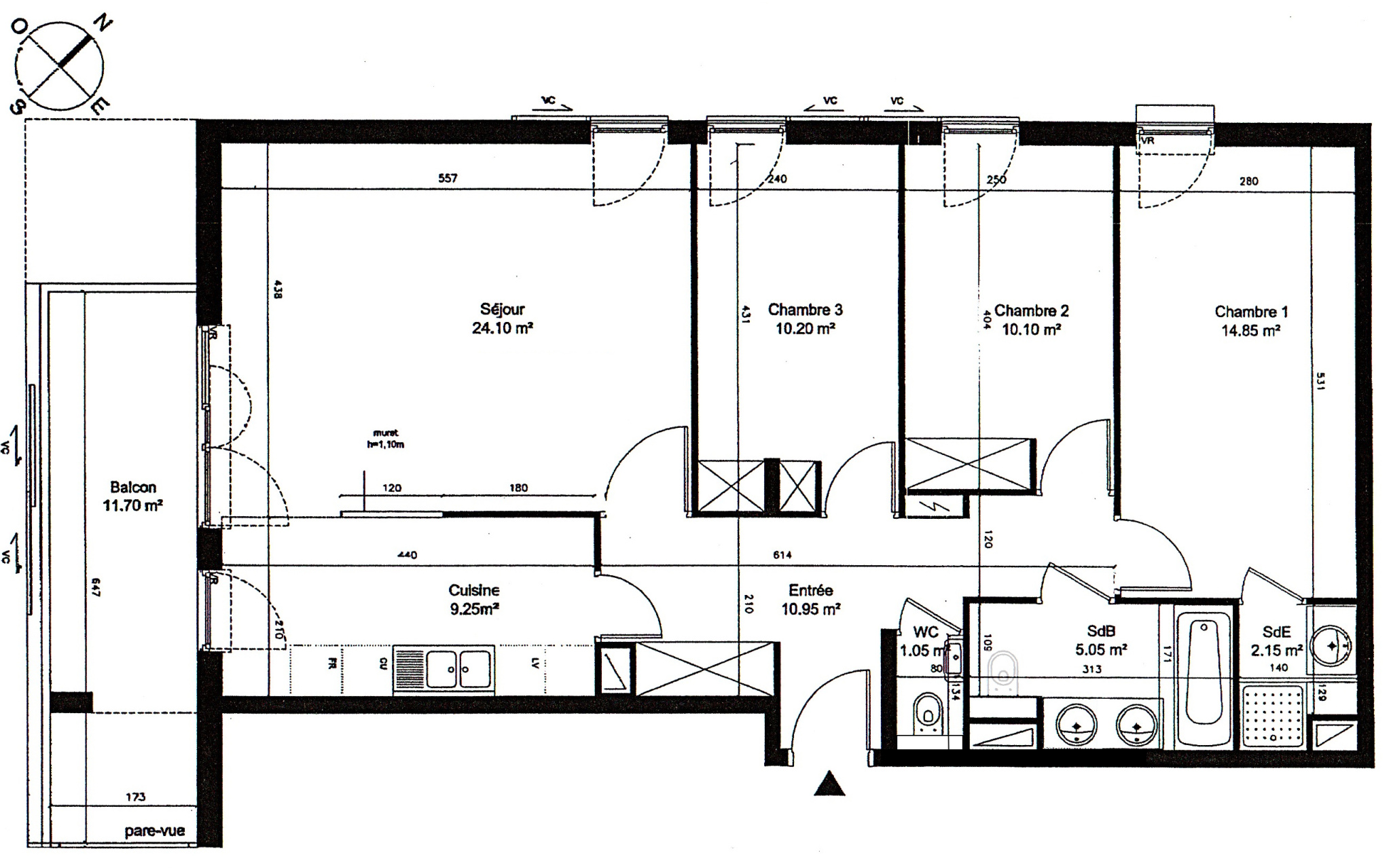
Description du bien
Situé au cœur du quartier recherché de la Seine Musicale, dans un immeuble sécurisé et parfaitement entretenu, ce bel appartement de 87,5 m2 situé au 4ème étage, séduit par son plan moderne et sa luminosité.
La pièce de vie de 34 m2, avec cuisine ouverte aménagée et équipée, s’ouvre sur un balcon d’environ 12 m2, esposé sud ouest, idéal pour déjeuner face à la Seine et profiter d’une vue dégagée et apaisante.
L’ensemble de l'appartement est climatisé, avec volets roulants électriques dans chaque pièce doté d'un système de domotique centralisé permettant de piloter climatisation, volets, chauffage et éclairage offrant un confort de vie optimal.
L’espace nuit comprend trois chambres, dont une suite parentale avec sa propre salle de bains avec espace buanderie, une salle d’eau et un WC indépendant, parfaitement adaptés à une vie de famille.
Une place de parking sécurisée est disponible en supplément du prix. Un appartement coup de cœur, alliant emplacement premium, extérieur, prestations modernes et qualité de vie.
La pièce de vie de 34 m2, avec cuisine ouverte aménagée et équipée, s’ouvre sur un balcon d’environ 12 m2, esposé sud ouest, idéal pour déjeuner face à la Seine et profiter d’une vue dégagée et apaisante.
L’ensemble de l'appartement est climatisé, avec volets roulants électriques dans chaque pièce doté d'un système de domotique centralisé permettant de piloter climatisation, volets, chauffage et éclairage offrant un confort de vie optimal.
L’espace nuit comprend trois chambres, dont une suite parentale avec sa propre salle de bains avec espace buanderie, une salle d’eau et un WC indépendant, parfaitement adaptés à une vie de famille.
Une place de parking sécurisée est disponible en supplément du prix. Un appartement coup de cœur, alliant emplacement premium, extérieur, prestations modernes et qualité de vie.
Lire plus
Les Plus
Surface (m²)
90
Pièces
4
Chambres
Chambres
3
Salle de bains
1
Salle d'eau
1
WC
1
Charges mensuelles
420
Cuisine
Americaine -Equipee
Balcon
Oui
Non
Parking
Oui
Non
DPE
C
Construction
2010
Non-renseignée
Étage du bien
4
Chauffage
COLLECTIF
Exposition
SUD-OUEST
862000
HAI
842000
Prix net vendeur avant l'application des honoraires d'agence
Merci de votre envoi ! Nous vous contacterons dans les plus brefs délais.
Oops! Something went wrong while submitting the form.
Et si c'était Vous ?
Nous pouvons vous aider trouver l'introuvable.
En charge de ce Bien
Contactez-nous directement

Baron Real Estate
Votre agence partenaire
Résidentiel
Nous Contacter





































































































































































































































































































































































